USP Cleanroom

USP <797> & <800> Compliant Modular Cleanroom for Compounding Pharmacies

ISO 7 Buffer Room | ISO 8 Ante Room | Fast Renovation | Inspection-Ready Design

Designed for USP Compliance. Built for Fast Installation.

✔ Preparing for USP <797> inspection?
✔ Limited renovation space inside existing pharmacy?
✔ Need compliant buffer & ante room layout?
✔ Concerned about airflow & pressure cascade design?

Are You Fully Compliant with USP Standards?

Proper ISO 7 Buffer Room
HEPA filtration & 30+ ACPH

Pressure Cascade Control
Positive pressure for sterile compounding
Negative pressure for hazardous drugs (USP <800>)

Separate Ante Room
Personnel & material flow separation

HEPA Ceiling System
Terminal filtration with laminar airflow

Pharmaceutical & Biotech

Ready to find out more? Get started today!

Turnkey Modular Cleanroom Solution for Pharmacies

Designed for State Board Approval

Pharmacy projects are different from large pharmaceutical factories.Space is limited. Retrofit is common.
Our engineering ensures:

✔ ISO 7 Buffer Room
✔ ISO 8 Ante Room
✔ Negative Pressure HD Room (USP <800>)
✔ 0.01–0.03 in. w.c. monitored pressure differential
✔ Compliant HEPA ceiling coverage

Result:
Higher first-pass inspection success rate.
Lower redesign cost.

HVAC & Airflow Design

Many pharmacy contractors overspec airflow “to be safe,”leading to long-term electricity waste.

We calculate:

  • Actual ACPH based on room volume

  • Return air positioning for pressure stability

  • Exhaust balance for hazardous drug rooms

This reduces:
✔ Fan energy consumption
✔ Filter loading rate
✔ Long-term utility bills

Modular Construction Reduces Downtime

For pharmacy renovation or hospital retrofit:

✔ Prefabricated wall systems
✔ Integrated pass-through & cleanroom doors
✔ Fast installation cycles

Less shutdown time = Less operational revenue loss.

Hazardous Drug Room Optimization (USP <800>)

Containment rooms must maintain continuous negative pressure.

We design for:

✔Stable exhaust system
✔Safe containment airflow
✔Easy-access maintenance

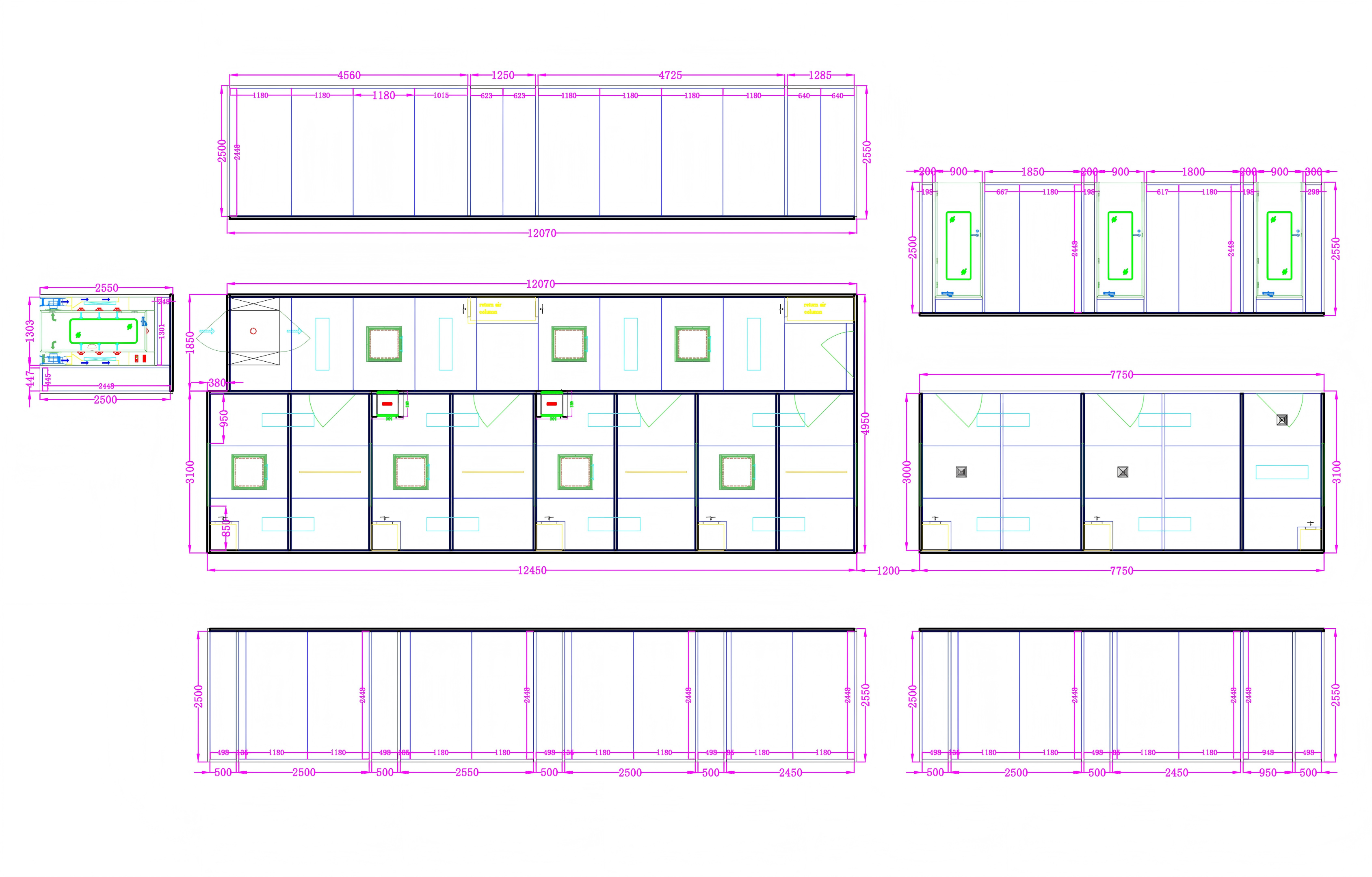
Typical USP 797 Pharmacy Cleanroom Layout

Pharmacy Cleanroom Layout (1)(1)

[Ante Room] → [Buffer Room] → [LAF / BSC Area]

• ISO 8 Ante Room
• ISO 7 Buffer Room
• Dedicated Hazardous Compounding Area (if required)
• Proper pressure cascade

Typical Case

USP797&USP800
Constant temperature and humidity
Texas, USA , Year 2025
Phamacy,923 ft²

ISO5 Modular clean room
Tennessee, USA , Year 2025
Phamacy,345ft²

ISO7 Modular clean room
Hawaii, USA , Year 2025
Phamacy,200ft²

Why Choose Dersion Modular Cleanroom?

+ years
Cleanroom industry experience
German TRUMPF Sheet Metal Equipment
Modern smart factory
Global Export Experience
ISO7 (Class 10,000) Assembly Shop
One-Stop Design + Manufacturing + Installation
+
Cleanroom-related patents
ISO & CE Certified Production

Designed for:

Retail Compounding Pharmacies

✔ Retail Compounding Pharmacies

Hospital Pharmacies

✔ Outsourcing Facilities

Outsourcing Facilities

✔ Hospital Pharmacies

Sterile & Non-Sterile Compounding Areas

✔ Sterile & Non-Sterile Compounding Areas

Ready for Your Next USP Inspection?

Get a compliant layout plan and budget estimate within 48 hours.

Write your message here and send it to us